Abstract: This paper addresses the early Christian transition from temple-based Judaism to the Constantinian basilica of the fourth century. David argues that some Christians of the second and early third centuries may have had places of worship that, while not monumental in scale, qualify typologically as temples and were understood as such. These sacred structures may have been used for the performance of baptisms for the dead, as suggested by Doctrine and Covenants 124. In support of this thesis, he takes as case studies the Christian places of worship at ancient Edessa and Dura Europos, based on a combination of textual sources and archaeological remains. David then briefly applies these findings to a question posed years ago in studies by Hugh Nibley and John Lundquist, “What Is a Temple?”
[Editor’s Note: Part of our book chapter reprint series, this article is reprinted here as a service to the Latter-day Saint community. Original pagination and page numbers have necessarily changed, otherwise the reprint has the same content as the original.
See David Calabro, “From temple to church: Defining sacred space in the Near East,” in The Temple: Past, Present, and Future. Proceedings of the Fifth Interpreter Foundation Matthew B. Brown Memorial Conference, 7 November 2020, ed. Stephen D. Ricks and Jeffrey M. Bradshaw (Orem, UT: The Interpreter Foundation; Salt Lake City: Eborn Books, 2021), page numbers forthcoming. Further [Page 78]information at https://interpreterfoundation.org/books/the-temple-past-present-and-future/.]
Introduction
The scriptures of the Restoration have a way of pushing us beyond prevailing scholarly paradigms, sometimes even requiring us to return to the primary sources and rebuild from the ground up. This is a healthy process—part of learning “by study and also by faith” (Doctrine and Covenants 88:118).
The present study began with a passage from the Doctrine and Covenants section 124. In verses 25–27, in a passage closely analogous to the Lord’s commandment to build a tabernacle in Exodus 25:1–9, the Lord commands the Saints to bring products for the construction of a house for the Lord to dwell in. Then, in verses 29–33, the Lord gives as a fundamental purpose of this commandment the fact that the ordinance of baptism for the dead “belongeth to [his] house.” He goes on to say that there is a “sufficient time” appointed, after which the baptisms would no longer be acceptable. For the Saints in our dispensation, this “sufficient time” lasted until the dedication of the baptismal font of the Nauvoo Temple in November 1841, about one year after the doctrine of baptism for the dead was revealed.1
Verse 33 mentions that this localization of the ordinance was “instituted from before the foundation of the world,” which statement implies that the temple was the preferred place for this ordinance in prior dispensations as well. Yet our doctrine also maintains that baptism for the dead began to be practiced in the dispensation of the meridian of time, after Jesus organized the preaching of the Gospel to the spirits in prison (Doctrine and Covenants 138:29–35). Paul gives us the first and only biblical reference to this ordinance:
Else what shall they do which are baptized for the dead, if the dead rise not at all? why are they then baptized for the dead? (1 Corinthians 15:29)
Early Christian literature also provides some information about the practice of baptism for the dead. From a couple references in the writings of Tertullian, we see that the practice was already poorly understood among Christians living around Carthage (North Africa) in the early third century. Tertullian’s knowledge of the practice may be based solely on 1 Corinthians 15:29; he concludes that the practice has no validity [Page 79]but that it shows correct faith in a bodily resurrection.2 But as late as the second half of the fourth century, Epiphanius of Salamis reports having heard of Christians in the provinces of Asia and Galatia (in modern-day Turkey) who observed a traditional practice of being baptized on behalf of those who had died without baptism, and this practice was said to be the one to which Paul referred in 1 Corinthians 15:29. Epiphanius, however, regards the practice as misguided.3 During the same period, John Chrysostom and Didymus the Blind mention that the Marcionite sect practiced a form of baptism of the living on behalf of the dead, although they disagree on whether this was done for catechumens of the sect or for unbelievers.4 These sources do not allow us to establish how widespread the practice of baptism for the dead was in the first two centuries.5 The manner in which it was performed also remains uncertain. Nevertheless, it seems clear that at least some early Christians practiced baptism for the dead as early as the first century (when Paul wrote his epistles to the Corinthians) and as late as the fourth century.6
Where, then, did early Christians perform their baptisms for the dead? Just as the Latter-day Saints in Nauvoo were commanded to build a temple in which to perform this ordinance, did early Christians build temples with baptismal fonts? In what follows, I will argue that at least some did.
Most scholars who have studied the development of sacred space in early Christianity have maintained that early Christians did not build temples.7 The specifics of this development are subject to different theories, but most agree that the Church replaced the Jewish temple only rhetorically, not with a new physical temple.
Nibley makes a sharp distinction between the “primitive church,” which continued the tradition of temple rites, and “the later church,” which was “by all accounts a totally different thing,” and which tried to continue the temple rites but “failed, attempting for a time to establish its own substitutes for the temple.”8 According to Nibley, the primitive church was centered on the temple in Jerusalem, and the destruction of the temple in ad 70 was a devastating blow from which the church never recovered. The church continued to preserve the rites in secret, but these were eventually corrupted and diffused. The later church was dependent on the Jewish synagogue for its rites, which accords with the contemporary theory that early Christian churches were based architecturally on the synagogue.9 The endpoint of Nibley’s paradigm is the reforms of Constantine in the fourth century, when the Church of [Page 80]the Holy Sepulcher in Jerusalem was revived as the replacement of the ancient temple.10
More recently, L. Michael White, on the basis of a careful survey of archaeological and textual evidence across the early Christian world, proposed a four-stage development of Christian religious buildings from meeting in members’ homes to the adoption of the basilica under Constantine. In this development, the buildings became progressively larger and took on more and more monumental characteristics, all driven by the need of Christian communities for larger places of assembly. The four stages, with their associated dates, are as follows:
- House church (first to second century)
- Domus ecclesiae (early third century)
- Aula ecclesiae (late third to early fourth century)
- Basilica church (fourth century)11
White’s model is strictly linear, from smaller to larger spaces, and assumes that Christian buildings were essentially places of assembly for preaching and for the rite of the Eucharist. The temple has no place in this model.
Can the current scholarly models be reconciled with the practice of baptism for the dead? One might assume that early Christians, like the Latter-day Saints in Nauvoo, resorted to natural bodies of water to perform their proxy baptisms—an option that the Lord permits according to Doctrine and Covenants 124, though only for an appointed time that is “sufficient . . . to build a house unto [him]” (Doctrine and Covenants 124: 31). It is also possible that those to whom Paul refers in 1 Corinthians 15:29 were practicing a corrupt form of Christianity as some commentators have assumed, though the fact that Joseph Smith quotes this passage approvingly (Doctrine and Covenants 128:16) makes this interpretation less viable for Latter-day Saints.12
My own investigation, however, suggests the need for a more nuanced paradigm. I will argue that there is evidence to believe that some early Christians worshiped in places best classified as temples. This argument will be based on two sites in the Near East: Edessa and Dura Europos. I would emphasize at the outset that the data I am discussing are not new; indeed, White discusses both of these sites, and and one of them features prominently in his model. What is new here is my approach to the data, which is prompted by Doctrine and Covenants 124. This brings up questions that do not feature in previous studies, questions that lead in turn to some new findings. I will conclude with some reflections on [Page 81]the lessons learned in this study and how they might inform future Latter-day Saint studies of ancient temples.

Figure 1. Balikli Göl (Abraham’s Pool) at the site of ancient Edessa, now Urfa, Turkey. Now located inside a mosque, this is said to be the site of a miracle in which God delivered Abraham from burning by turning the flames into water.
Edessa
The ancient city of Edessa, modern Urfa, is located on the Daisan river in southeastern Turkey. The city is said in local tradition to be the site of the biblical Ur of the Chaldees—the birthplace of Abraham—a notion with which some scholars agree.13 Only six miles from the city is Göbekli Tepe, recently hailed as the site of the world’s oldest temple.14 In the early centuries of the common era, Edessa became a center of Christian worship and the starting place for the spread of Syriac Christianity throughout the Middle East. Among the vast corpus of Syriac historical writings is a brief chronicle known as the Chronicle of Edessa. This work was composed in the sixth century but was certainly based on older records found in the “archives of Edessa,” which are mentioned within the text itself. These same archives are independently mentioned by Eusebius and are extolled for their reliability by several other ancient sources.15 This chronicle preserves for us the earliest surviving reference to a building devoted to Christian worship. The context of this reference [Page 82]is an account of a flood that occurred in ad 201, which destroyed the city’s palace and several other buildings:
And in that same hour, the waters broke through the western wall of the city and entered inside the city. They broke down the great and beautiful palace of our lord the king, and they carried away everything that was found before them, the pleasant and beautiful buildings of the city, everything that was near the river to the south and north of it. And they also damaged the temple of the church of the Christians. And more than two thousand people were killed by this occurrence.16
Note that the Christian building, the very first attested in any ancient source, is specifically referred to as a temple (in Syriac, hayklā). While this fact has been known for some time, it is generally dismissed by scholars. After all, later Christian writers commonly referred to Christian churches as temples, in line with Christian rhetoric setting up the Church as the successor of the temple in Jerusalem.17 Yet a close reading of the Chronicle of Edessa suggests that the term as used here is not merely figurative, nor is it connected to the later Christian usage.
The chronicle contains many further references to churches the bishops of Edessa constructed. These further references conform to a distinct pattern of terminology. Yet the reference to the flooded temple of ad 201 seems to belong to a separate category. The references to religious buildings in the Chronicle are tabulated in table 1.
Entry | Year ad | Syriac | English |
---|---|---|---|
1 | 201 | hayklā d-ˁidtā da-krisṭyāne | temple of the church of the Christians |
12 | 313 | ˁidtā d-ˀūrhāy | church of Edessa |
14 | 324 | ˁidtā | church |
16 | 328 | ˁidtā d-ˀūrhāy | church of Edessa |
18 | 346 | bēt mawdyāne | house of the Confessors |
29 | 370 | bēt maˁmūdītā rabbtā d-ˀūrhāy | great house of baptism of Edessa |
33 | 377 | ˁidtā d-ˀūrhāy | church of Edessa |
34 | 377 | bēt mār dānīˀēl | house of Mar Daniel |
[Page 83]34 | 377 | bēt mār dēmeṭ | house of Mar Demet |
38 | 394 | hayklā rabbtā d-mār tāwmā šlīḥā | great temple of Mar Thomas the Apostle |
48 | 409 | bēt mār barlāhā | house of Mar Barlaha |
51 | 412 | bēt mār sṭepānos | house of Mar Stephanus |
59 | 435 | ˁidtā ḥdattā hāy d-yawmānā bēt šlīḥe metqaryā | new church, which is now called the house of the apostles |
60 | 438 | ˁidtā ˁattīqtā d-ˀūrhāy | old church of Edessa |
64 | 448 | ˁidtā | church |
68 | 457 | bēt mār yoḥannān maˁmdānā | house of Mar Yohannon the Baptist |
68 | 457 | bēt-sāhde l-mār qozmā w-mār damyānā | martyrion of Mar Cosma and Mar Damian |
76 | 499 | hayklā | temple |
81 | 503 | bēt mār sargīs | house of Mar Sergius |
81 | 503 | basilīqi garbyāytā d-bēt mawdyāne | northern basilica of the house of the Confessors |
88 | 519 | bēt maˁmūdītā | house of baptism |
The terms used for the religious buildings in this text sort into six types, as shown in table 2.
Syriac term | English translation | Paragraphs in the Chronicle |
---|---|---|
hayklā d-RELIGION | temple of RELIGION | 8 |
ˁidtā (d-CITY) | church (of CITY) | 12, 14, 16, 33, 59, 60, 64 |
bēt SAINT | house of SAINT | 18, 34 (bis), 48, 51, 59, 68, 81 |
bēt maˁmūdītā d-CITY | baptistry of CITY | 29, 88 |
bēt sāhde l-SAINT18 | martyrion of SAINT | 68 |
[Page 84]hayklā (d-SAINT) | temple (of SAINT) | 38, 76 |

Figure 2. Map showing the locations of ancient Edessa and Dura Europos.
There seems to be a fundamental shift in word usage between the first entry, dated ad 201, and subsequent entries that mention buildings, which start in the time of Constantine over a century later. Not once in the later entries is it necessary to qualify the term hayklā by the name of a specific religion. The ad 201 entry is from a period in which there were many temples of various religions in Edessa, making it necessary to specify which religion the temple belonged to. We know from other evidence that there were, indeed, many temples in the region.19 The use of the term in this early context implies that the building was similar in physical appearance and purpose to the temples of other religions. If this were a mere domestic dwelling, as White’s paradigm would assume, it is doubtful that the term “temple” would have been used, or even that the building would have been mentioned in the chronicle at all. Therefore, we have at least one solid reference to a specifically Christian building, known to the record-keeper as a temple, in Edessa in 201. On the assumption that the building was constructed somewhat earlier, we can tentatively place its construction in the latter half of the second century.
Later, from ad 313 to 503, we see the shift in word usage. A group of terms, including ˁidtā, baytā, and hayklā, seem to be synonymous and to refer to typical Byzantine-style churches.20 A poem composed around the sixth century, which poem eulogizes the domed cathedral in Edessa in terms that embody temple themes, demonstrates the application of [Page 85]temple ideology to the Byzantine basilica during this later period. The poem begins as follows:
Self-existent one who dwells in the holy temple,
For whom praise flows naturally from it,Give me the grace of the Holy Spirit,
That I might speak of the temple that is in Edessa.
Bezalel fashioned for us a Tabernacle
According to the pattern that he learned from Moses,And Amidonus, Asaph, and Addai
Built for you a glorious temple in Edessa.
Symbols both of your existence and of your plan
Are clearly portrayed therein.The one who looks closely
Will at last be filled with wonder
For truly it is a wonder.
That its smallness seems expansive as the world—Not in measurement, but symbolically;
And waters surround it like the sea.21
The poem goes on to describe the features of the building and how they represent parts of the cosmos. The word hayklā, “temple,” is used to refer to the building throughout the poem. With an understanding of the earlier existence of a temple at Edessa, it seems likely that the ideology we find in this poem had been carried over from that earlier period.
Dura Europos
The textual evidence from Edessa can be further illuminated by bringing it into comparison with archaeological evidence from another city, Dura Europos, which was situated on the Euphrates river about two hundred miles southeast of Edessa (see figure 2). The two cities, like many in the Syrian cultural area in late antiquity, are broadly comparable in terms of their religious demographics: both cities had several large pagan temples, a single, more modest Christian establishment, and a single Jewish synagogue. The two cities were also linguistically similar, with Greek and Syriac being used.
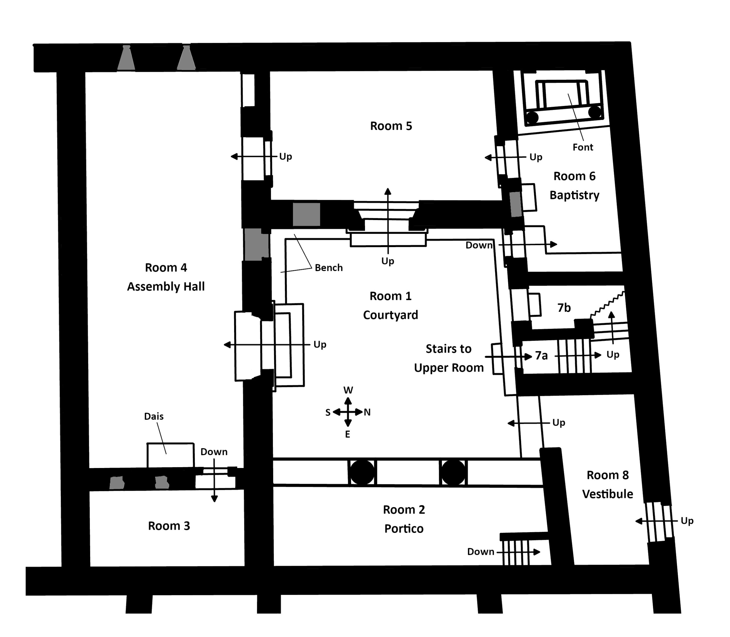
The Christian building at Dura Europos began as a domestic house, perhaps used for gatherings by a growing Christian community. In circa ad 232, this house underwent renovations to convert it into a place of [Page 86]worship (see figure 3). On the south side of the building, a wall was torn down to form an elongated assembly room. The level of this room’s floor was raised, thereby eliminating a bench that originally lined the walls and making movement from the adjoining rooms an ascending passage. Instead of the bench, a single dais (that is, a platform for a throne) was placed at the east end of the room. The plaster floor of the open courtyard in the center of the house was covered with tiles. In the room at the northwest corner of the building, which the excavators called Room 6, a beautiful, arched baptismal font was installed, and the walls were painted with religious scenes. The excavator, Carl Kraeling, states that the changes in Room 6 “were more extensive than in any other part of the premises, the new installations more monumental and the decor applied to the walls sumptuous by local standards.” Among the several rooms of the house, this one “became the most elegant and, as a room devoted to ceremonial use, in all probability the most sacred.”22 Finally, an “Upper Room,” something that was “not common at Dura,” was added directly above the baptistry of Room 6.23
This building is one of the examples White adduces in his category of the domus ecclesiae, which refers to a domestic space that has been adapted “to make it more suitable for the specialized religious and social functions of Christian assembly.”24 The Greek equivalent of this term, oikos ekklesias, was used for religious buildings in Mediterranean cities, including Antioch, in the third century.25 White’s identification of the Dura building as a domus ecclesiae follows Kraeling.26 However, the term is not attested at Dura Europos, and there is no direct evidence that it was applied to the Christian building there in antiquity. Further, the typological characterization that this term carries with it (namely, the characterization as a stage in the development of the basilica church) is a scholarly construct developed by White himself. Thus, the way in which this building was characterized by the Christian community at Dura remains an open question.
Does the notion of a temple—defined here in Latter-day Saint terms as a sacred place for priesthood ordinances, including redemptive work for the dead—fit with the Christian building at Dura Europos? There are four reasons why I would suggest that this is a possibility.
First, the care and decoration given to the baptistry, in proportion to the rest of the building, recalls the importance of baptism for the dead in Doctrine and Covenants 124. There is no way to know whether the font in Room 6 was used for the living only, the living on behalf of the dead, or both. However, according to the early church handbook known [Page 87]as the Didache, baptisms for the living were supposed to be performed in “living water” if possible—that is, probably, in the flowing water of a river.27 With the Euphrates river close at hand, the presence of a baptismal font at this early date could contradict the Didache, unless it was for the special purpose of baptisms for the dead, which should be performed in a temple according to Doctrine and Covenants 124.

Figure 3. Floor plan of the Christian building at Dura Europos after renovation.
The features of the font are compatible with a use that may have included baptisms for the dead. The font, large enough for total immersion, is also deep enough that its floor is below that of the surrounding rooms.28 This recalls the principle that the font, as a similitude of the grave, “was commanded to be in a place underneath where the living are wont to assemble” (Doctrine and Covenants 128:13).
The decorative scheme of the font and of the baptistry as a whole is also compatible with the possibility that baptisms for the dead were performed there. The most prominent of the wall paintings, immediately visible to anyone entering the room, is the procession of women on the north and east walls (see figure 4). Many suggest it represents the women approaching Christ’s tomb on the morning of the resurrection.29 [Page 88]However, there are no clear indications of Christ or of the Easter narrative in the composition, so it can also be understood as a generic funeral procession. The women advance toward the font, the procession ending at a peaked structure, thought to represent a tomb, immediately to the right of the font. This would certainly suggest a connection between baptism and the dead who are to emerge from the grave.30

Figure 4. The Procession of Women and the font in the baptistry of the Christian building at Dura Europos.
Underneath the arch immediately behind the font is a representation of Adam and Eve flanking the tree of knowledge of good and evil and touching its fruit, a reminder of how death entered the world. Above this is a representation of Christ as the Good Shepherd standing among a group of sheep and carrying a ram on his shoulders.
Other paintings in the room show Christ lifting Peter from the depths to walk on the water and healing the paralytic. In both cases, Christ stretches out his hand, and in the scene of walking on the water, this culminates in a grip with Peter’s hand. Both of these scenes are suggestive of Christ’s power to redeem and to raise the dead.
Interestingly, several features of the font are comparable to the Torah niche at the nearby synagogue in Dura Europos, making it likely that the font was designed in purposeful dialogue with the Torah niche (see figure [Page 89]5). Both are located in the center of the western wall of their respective rooms. They show similar construction, including an arch supported by columns that are painted to resemble marble. The details of the paintings underneath the arch of the baptismal font are comparable to those on the arch of the Torah niche: where the Torah niche shows a menorah with a fruit (the etrog) and branch (the lulav), the baptismal font shows the tree of knowledge of good and evil with the fruit that Adam and Eve grasp. Where the Torah niche shows the binding of Isaac, with a ram (Genesis 22:13) and human figure in the foreground, the baptismal font shows the Good Shepherd carrying a ram and standing among sheep. Both the Torah niche and the baptismal font are the focal points of larger narrative schemes in the respective rooms’ wall paintings.31 Finally, both embody the concept of a gate. For the Torah niche, this is evident in the visual similarity between the niche itself and the painting of the temple façade, including a gate, at the center of the arch above the niche.32 In the case of the font, the columned arch recalls the description in 2 Nephi 31:17–18 of baptism as the gate by which one enters the path leading to eternal life. The font’s collocation of the concepts of the gate, the sheep, and the fruit may be connected in some way to Matthew 7:7–20, near the end of the Sermon on the Mount, in which Jesus teaches about wolves in sheep’s clothing, knowing prophets by their fruits, and entering in at the strait gate. There may also be an implicit statement that repentance and baptism, rather than the law of Moses (the focal point of the Torah niche), is the gate to salvation, as taught in the Joseph Smith Translation of Matthew 7:9, 13–14:
And then said his disciples unto him, They will say unto us, We ourselves are righteous, and need not that any man should teach us. … We have the law for our salvation, and that is sufficient for us. Then Jesus answered and said unto his disciples, Thus shall ye say unto them, What man among you, having a son, and he shall be standing out, and shall say, Father, open thy house that I may come in and sup with thee, will not say, Come in, my son; for mine is thine, and thine is mine? … Repent, therefore, and enter ye in at the strait gate: for wide is the gate, and broad is the way, that leadeth to destruction, and many there be who go in thereat: Because strait is the gate, and narrow is the way, that leadeth unto life, and few there be that find it.
This passage is strongly evocative of the temple, especially the reference to the father’s house.33
[Page 90]

Figure 5. a. Baptismal font on the western wall of the baptistry in the Christian building at Dura Europos.
b. Torah niche on the western wall of the synagogue at Dura Europos
[Page 91]Second, the existence of an upper room directly above the baptistry allows for the possibility of an ascending sequence of ordinances from baptism to other rites and covenants. The stairs leading to the upper room are just east of the baptistry. Unfortunately, there are no remains to indicate what purpose this upper room served. The idea of an upper room is suggestive of the upper room in which Christ administered the Last Supper, washed the feet of the Apostles, and administered sacred teachings (Matthew 26:20–30; Mark 14:17–26; Luke 22:14–38; John 13:1–14:31). According to the apocryphal Acts of John, the events in that upper room included a prayer circle: Jesus commanded the Apostles to form a circle and grasp one another’s hands. Jesus then stood in the center of the circle and prayed, and the Apostles repeated the word amen after each verse of the prayer.34 Thus one possibility is that the upper room at Dura was used for rites such as a ritual meal, a washing ceremony, and a prayer circle, these being analogous to the ceremonies administered on the ground floor but perhaps restricted to a select group. The room may also have been used for sacred instruction.
Third, the building is broadly similar in both size and manner of development to the pagan temples and the Jewish synagogue at Dura. The interior of the Christian building, with its high ceilings and columned doorways, would have presented a majestic appearance.35 Kraeling remarks on the unusual size of the building compared to the average house at Dura:
As dwellings go at Dura, the Private House is a structure of no mean size. There were a few much larger establishments, for instance the so-called House of the Large Atrium in Block D1, but the great majority was decidedly smaller. Actually, the building was comparable in the size of the lot it occupied to that used for the earlier of the two successive synagogues by the Jewish community of Dura.36
Further, White shows that many of the pagan temples at Dura developed, as the Christian building did, from domestic buildings into monumental sacred structures through a series of renovations and expansions. The Jewish synagogue at Dura also developed in the same way.37 Marie-Henriette Gates also emphasizes the continuity between the various religious buildings at Dura, all of them having what she calls a “basic ‘oriental’ character.” Components of this include a basic layout that resembles domestic architecture, “little variety in exterior decoration,” and interior embellishment with “programs of painted decoration.” According to Gates,
[Page 92]This so-called oriental, or Syro-Mesopotamian quality, is in fact precisely the essence of Durene culture. One cannot correctly interpret the religious structures, whether pagan, Jewish, or Christian, from any perspective other than within the context of a typical, provincial Syro-Mesopotamian community that is part of a long conservative history of religious and secular building.38
This runs counter to the assumption that converting a house into a place of worship was a specifically Christian practice, which partially lies behind the choice of the term domus ecclesiae. Conversely, it shows that the development of the building at Dura fits with the cross-religious pattern of temple-building in that region.
Fourth, some scholars connect the features of the assembly hall in the Dura building with a contemporary textual source describing the order of the Eucharist, which was known as Didascalia Apostolorum.39 This text, originally composed in Greek somewhere in Syria around ad 230, survives in Greek only in a single fragment but is fully preserved in Syriac. The twelfth chapter of Didascalia Apostolorum gives instructions for the positions and behavior of the bishop, elders, deacons, and members during the Eucharist, recalling the order of the priesthood for the temple in Kirtland as described in Doctrine and Covenants 88:119–141. It also mentions a throne for the Bishop, which is likely what the dais at the east end of the assembly hall at Dura is. But most important for our purposes is the exhortation to bishops at the beginning of the chapter: “Do not profane the house of the Lord nor scatter his people.”40 The phrase “the house of the Lord,” I would argue, refers to the physical setting of the Eucharist and shows that this space was conceptualized as a temple.
Initially, one might suspect that this statement adopts usage similar to that of New Testament passages referring to the church community as the “temple” or the “house of God.”41 However, the Syriac term used here for “the house of the Lord,” bayteh d-māryā, is the same term used in reference to the temple of Solomon and other temple structures in the Old Testament Peshitta; the phrase as used in the Peshitta translates the Hebrew term bēt YHWH.42 None of the New Testament passages referring to the church community use this precise phrase; indeed, the phrase is absent from the New Testament (both from the Greek and from the New Testament Peshitta). Thus, the use of this phrase clearly evokes Old Testament usage referring to a physical temple structure. In the immediate context of the twelfth chapter of Didascalia Apostolorum, [Page 93]the term baytā, “the house,” appears several times in reference to the physical building where the Eucharist takes place—for instance in the instruction, “Let a place be set apart for the priests at the eastern end of the house, and let the bishop’s throne be set up in their midst, and the priests shall sit with him.”43 It would seem, therefore, that bayteh d-māryā at the beginning of the passage, as well as the shorter form baytā used subsequently, refers to the place where the people of God assemble.
The combined evidence of the archaeology of the Christian building at Dura Europos, the Chronicle of Edessa, and the Didascalia Apostolorum is strongly suggestive of how the building at Dura Europos was conceptualized among those who actually used it. This evidence runs counter to the notion that the building was merely conceptualized as a “house of the church.” To be sure, the word ˁidtā, “church,” which occurs in the post-Constantinian entries of the Chronicle of Edessa in reference to church buildings, occurs in the Didascalia Apostolorum. But in the Didascalia Apostolorum, the term never refers to an actual building, having instead its original sense of “church assembly, congregation”; and it never occurs in combination with the word for “house.”44 Instead, based on the Didascalia Apostolorum and the Chronicle of Edessa, we have two terms for a Christian building in the Syrian milieu during this period. The term used in a Christian context would be bayteh d-māryā, “house of the Lord,” and the term used in a more general context would be hayklā d-ˁidtā da-krisṭyāne, “temple of the church of the Christians.”45
Conclusion
Scholarship so far has developed paradigms that exclude the temple from Christian sacred architecture during the period between ad 70 and the rise of Christianity to the status of an official religion of the Roman empire in the fourth century. According to current paradigms, we should not have anything that could be called a temple as early as the flood of Edessa in ad 201, and having a fine indoor baptismal font such as we find at Dura Europos, with the Euphrates river just down the hill, is unexpected.
But the evidence from the region of Syria discussed in this study, interpreted in its own context, offers us a picture of early Christianity that could fit comfortably with Doctrine and Covenants 124. It seems to me more than coincidence that of the two earliest known buildings devoted to Christian worship, one was specifically called a temple, and the other had a baptismal font as its most prominent feature.
[Page 94]This study also raises some larger questions that might impact Latter-day Saint studies of ancient temples. For instance, how do we know a temple when we see one? And of the myriad temples we can identify in ancient records and excavations, which qualify from a Latter-day Saint standpoint as true temples akin to our own—that is, sacred places whose ordinances focus on bringing people to the Messiah, binding people to God through covenants, and uniting families for eternity?
Several studies in the past have attempted to answer questions like these using a typological approach, one being John Lundquist’s typology of ancient Near Eastern temples.46 But this study shows that it is very difficult to know how a given ritual space was conceptualized by the people who used it unless we have written texts to help fill out the picture. The archaeological evidence uncovered at Dura Europos definitely allows us to identify Christian ritual space there. It even allows us to determine that baptisms were performed there. But it doesn’t tell us how early Christians characterized that space. For this, the Syriac textual evidence from the Chronicle of Edessa and Didascalia Apostolorum is crucial.
With these observations in mind, I would suggest that we need to develop a new approach in our studies of ancient temples. The two legs of this approach would be (1) a typological approach to archaeological evidence, paying particular attention to the relationship between ritual spaces and other types such as domestic spaces; and (2) a cultural-historical approach to textual evidence in its original languages, paying particular attention to the variety of ways in which different textual genres may inform us about the ideology attached to ritual space. I hope to develop each of these points in future studies. With this new approach, we will be able to move beyond suggestive comparisons and achieve greater accuracy in identifying temple space, including temples that are most relevant to our heritage as Latter-day Saints.
[Page 95]Notes for Figures
Figure 1. Balikli Göl (Abraham’s Pool), Şanlıurfa, Turkey, Wikipedia. https://pl.wikipedia.org/wiki/Plik:Balikli_Göl_03.jpg (accessed March 9, 2021). Used here under a Creative Commons license.
Figure 2. Map drawn by author.
Figure 3. Drawn by author based on Carl H. Kraeling, The Christian Building (New Haven: Dura Europos Publications, 1967), plan 5.
Figure 4. From Kraeling, The Christian Building, Plate 24. Used with permission.
Figure 5. a. From Kraeling, The Christian Building, Plate 23; b. From Carl H. Kraeling, C. C. Torrey, C. B. Welles, and B. Geiger. The Synagogue. The Excavations at Dura-Europos Conducted by Yale University and the French Academy of Inscriptions and Letters: Final Report VIII, Part I. New Haven, CT: Yale University Press, 1956, plate 24. Both images used with permission.


David Calabro is Curator of Eastern Christian Manuscripts at the Hill Museum and Manuscript Library at Saint John’s University. He holds a doctoral degree in Near Eastern languages and civilizations from the University of Chicago. His research deals with the languages and cultural history of the Near East. He lives in Saint Cloud, Minnesota, with his wife Ruth and seven children.